Tuotteen esittely
GB -nosturin kiskot ovat erityisiä rautatieteitä, jotka on valmistettu kansallisten standardien mukaisesti, ja päämäärityksinä (QU70, QU80, QU100, QU120), joita käytetään erityyppisten nostokoneiden . vakaan toiminnan tukemiseen, joka on valmistanut erityinen valssausprosessi, rautatiepään voimakkuus saavuttaa HB 300-380, ja Tensiilin vahvuus on, ja Tensiilin vahvuus on, ja Tensiilin vahvuus on, ja Tensiilin vahvuus on, ja Tensiilin vahvuus on, ja Tensiile on 900-1100 MPa . Sillä on korkea lujuus, korkea kulumisvastus ja hyvä iskunkestävyys, ja se kestää usein raskasta kuormitusta ja nosturien vaikutusta .
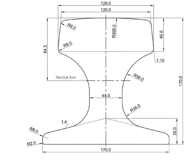
Ainutlaatuinen trapetsoidinen poikkileikkausmalli saa kiskon vyötärön kallistumaan kiskon päätä kohti, optimoi pyörä-rautatilan jakautumisen ja vähentää juoksevasta vastus ja kuluminen; Rautatiepään kaari -muoto sopii tiiviisti nosturipyörän kanssa sileän käytön varmistamiseksi . teollisuuslaitoksista satamapäätteisiin, päivittäisestä lastinkäsittelystä raskaan laitteiden nostoon, GB -nosturin kiskot tarjoavat vankan ja vakaan rautatietuen erilaisille nostooperaatioille, joissa on monipuolisia eritelmiä, luotettavia materiaaleja ja tieteellistä rakenteellista suunnittelua .}}}}}}}}}}}}}}}}}}}

U75V -materiaaliominaisuudet:
Verrattuna tavallisista materiaaleista valmistettuihin QU -nosturikiskoihin, Itse U75V -materiaalilla on suurempi lujuus ja tietty sitkeys . asianmukaisen lämpökäsittelyn jälkeen, sen suorituskykyä voidaan parantaa edelleen, kuten vetolujuus ja kovuus, jotta se voi sopeutua paremmin monimutkaisisiin stressiolosuhteisiin nosturin toiminnan aikana, mukaan lukien suurten kuormien, kulumisen ja vaikutuksen .}}}}}
Lämpökäsittelyn tarkoitus:U75V QU120 -nosturin kiskojen lämmönkäsittely on pääasiassa parantaa kiskojen organisaatiorakennetta, parantaen siten niiden mekaanisia ominaisuuksia, täyttäen suuren voimakkuuden, korkean kulutuskestävyyden, hyvän sitkeyden jne. Vaatimukset, . Crane -kiskojen todellisessa käytössä, pidentämällä kiskojen käyttöikä ja...} {3
Yleiset lämpökäsittelyprosessit ja vaikutukset:
Sammutus:Se voi lisätä kiskopään kovuutta ja voimakkuutta ja tehdä kiskopinnasta enemmän kulutuskestävää, mutta se voi vähentää sitkeyttä ., joten yleensä on tarpeen tehdä yhteistyötä karkaisuprosessin kanssa .
Karkaisu:Poista sammutusjännitys ja säädä tasapaino kovuuden ja sitkeyden välillä, niin että kiskolla on tietty kovuus ja kulumisvastus, ja sillä on riittävä sitkeys kestämään kuormia, kuten iskuja ja tärinää nosturin toiminnan aikana .
Tuotevaatimukset

Tuotesovellus

Terästuotteiden ulkomaankaupan alalla GNEE Rail tarjoaa GB Qu Qu -nnan kiskoja ydinliiketoimintana, joka palvelee maailmanlaajuisia teollisuusmarkkinoita . raskaiden laitteiden avainkomponenttina, nosturiteiden laatu vaikuttaa suoraan nostamisjärjestelmän turvallisuuteen ja vakauteen . tuotteemme tiukasti seuraavat GB-frequents and Hardness and Historicness and Can -sovellusta ja voi sopeutumista ja sitkeys- ja sitkeys- ja sitkeys- ja sitkeysomamme. Ympäristöt . Vuosien alan kertymisen kautta meillä on syvä käsitys eri alueiden asiakkaiden tarpeista ja voimme tarjota sopivia rautatie eritelmiä ja teknistä tukea tiettyjen sovellusskenaarioiden mukaisesti ., onko se irtotavaraa tai räätälöityjä tarpeita, voimme tarjota asiakkaille tyydyttäviä palveluita, joilla on tiukka asenne ja tehokas suorituksen .}}}}}}}}}}}}}}}}}}}}}




Suositut Tagit: U75V QU120 Lämpökäsitelty nosturirautatie, Kiina U75V QU120 Lämpökäsitellyt nosturi kiskovalmistajat, toimittajat, tehdas






